El Ayuntamiento invierte 390.000 euros en la construcción de un nuevo edificio para el colegio de Ramonete

Y una batería de mejoras en los IES Francisco Ros Giner e Ibáñez Martín

El paquete de obras de mejora ha sido aprobado esta misma mañana por parte de la JGL del Consistorio Municipal. En el caso de Ramonete, el nuevo edificio podría estar listo para enero del próximo año, mientras que las mejoras en los IES se realizarán durante el verano.

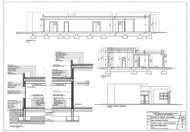
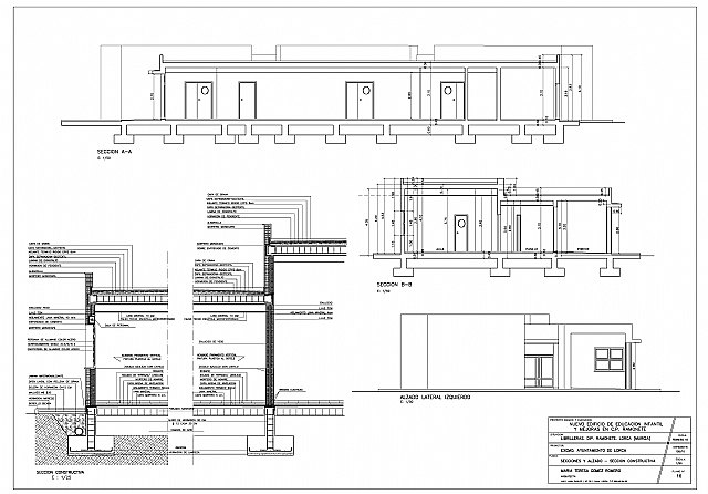
El Secretario de la JGL del Ayuntamiento de Lorca, José Joaquín Peñarrubia, ha informado de que el Consistorio Municipal va a invertir una cantidad total de 389.745 euros en la construcción de un nuevo edificio para el colegio de Ramonete, y la ejecución de una serie de obras de mejora en los institutos Francisco Ros Giner y José Ibáñez Martín. En el caso del colegio de “Librilleras”, en Ramonete, se va a proceder a la construcción de un nuevo edificio destinado a educación infantil y la realización de varias mejoras en el citado centro educativo. Se trata de una actuación que desde el Ayuntamiento de Lorca se consideraba como una de las prioridades dentro de la sustitución y mejora de infraestructuras educativas de nuestro término municipal. La reunión de esta mañana de la JGL ha contemplado la adjudicación definitiva de este proyecto, que supone una inversión de 231.500 euros, y que ya fue adjudicado de forma provisional en la sesión de la JGL del pasado 26 de febrero. Las obras de mejora serán llevadas a término por parte de una empresa constructora lorquina, que ha indicado dentro de la oferta presentada que empleará a 31 trabajadores, de los que 30 ya forman parte de la empresa y 1 será de nueva contratación. 

Peñarrubia Manzanera ha detallado que el plazo de ejecución de los trabajos es de 6 meses, por lo que, si no aparecen imprevistos de consideración particular, el nuevo edificio podría estar finalizado y a disposición de la comunidad educativa durante el próximo mes de enero.

El Secretario de la JGL ha indicado que la JGL también ha aprobado la realización de obras de mejora en el IES Ros Giner, instituto en el que se procederá, en concreto, a la sustitución de ventanas, así como a la realización de reformas varias, que serán realizadas por parte de una empresa lorquina. El plazo de ejecución de las obras es de 2 meses, siendo el objetivo que sean ejecutadas durante el periodo de vacaciones de verano para no interferir en el desarrollo regular de la actividad académica del centro. La inversión que se va a destinar en esta actuación asciende a un total de 76.705 euros.

El IES José Ibáñez Martín también se va a ver beneficazo por el paquete de mejoras en centros educativos que ha sido aprobado hoy por parte del Ayuntamiento en la reunión de la JGL. En este caso se van a realizar obras enfocadas a la sustitución de ventanas, así como a reformas varias. La obra, que cuenta con una inversión económica cifrada en 78.114,40 euros, será llevada a término por parte de una empresa lorquina. El plazo de ejecución es de dos meses, manteniendo aquí el mismo objetivo que en el caso del IES Ros Giner, de que las obras no interfieran en el normal desarrollo de la actividad docente del instituto.

Este sitio web utiliza cookies para facilitar y mejorar la navegación. Si continúas navegando, consideramos que aceptas su uso. POLITICA DE COOKIES